Делаем кровать длиннее
Старая кровать коротковата, и нам придётся сделать её длиннее, используя ту же фурнитуру. Новое дощатое днище, немного краски… и кровать как новая! На барахолке иной раз можно дешево приобрести что-то полезное, например, старые искусные ремесленные изделия. Новый владелец обрадовался было такому ценному приобретению, но когда собрал, призадумался: оказалось, что для матрацев места маловато. Кровать оказалась короче сантиметров на 15! И чтобы длина достигла двух метров, кровать пришлось удлинить посредине и по концам. Новые детали изготовлены из ДВП. А после покраски кровати места соединений и вовсе незаметны. Пригодилась и старая фурнитура, которую сняли, чтобы позднее установить на дополнительных деталях. Они крепятся к новым боковинам шкантами на клее и шурупами.
Как выбрать оптимальную высоту кровати
Какая высота оптимальна для кровати? Однозначного ответа на вопрос не существует. Все зависит от индивидуальных особенностей человека. Если стиль спальной мебели для вас имеет второстепенное значение, а в первую очередь хочется выбрать максимально комфортное, удобное ложе, идеальным будет европейский стандарт. Он рассчитан на рост среднестатистического европейца (170-180 см.). Высоким людям (200 см. и выше) рекомендуется выбирать мебель американского стандарта. Описанные параметры также требуется соотносить с возрастом. Так, высокому, но пожилому человеку, кровать с большим подъемом не подойдет. Существует риск травматизма, связанный с возрастным нарушением координации, сниженной скоростью реакции. Низкое ложе тоже неудобно для отдыха человека в солидном возрасте, а вот для детей считается подходящим. Чувство границы у малышей развито плохо, если они спят на кровати без бортиков, лучше чтобы она была низкой.
Определить, правильная ли высота у выбранного ложе, можно и без рулетки. Достаточно подойти к облюбованной модели вплотную, посмотреть, на каком уровне находится основание с матрасом. Идеальный вариант, когда матрас приходится на уровень коленей. Если кровать не комплектуется ортопедическим основанием, за норму можно считать бортик ложе, заканчивающийся чуть ниже коленок. Двуспальная кровать, которой будут пользоваться разные по росту люди, должна стать золотой серединой для обоих. Одним из удачных вариантов, опять-таки, станет мебель европейского стандарта. Она не позволит опускаться слишком низко высокому человеку, и карабкаться вверх низкому.
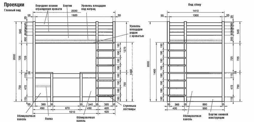
Как сделать двухъярусную кровать?
Если вам нужна кровать-чердак, внизу которой было бы пространство для игр, тогда обратите внимание на следующую модель. На этой схеме кровати даны основные размеры
Посмотрите, какой она длины и ширины. Также вы увидите размеры вертикальных опор. К кровати пристроена прочная лестница, с одной стороны она опирается на большую тумбу. Но чтобы обезопасить ребенка, лучше сделать на этой тумбе перила. Сначала нужно будет собрать левую часть кровати. Этому поможет чертёж. Соедините стойки с поперечными перекладинами при помощи шкантов и столярного клея. Затем закрепите дополнительно конструкцию саморезами
На этой схеме кровати даны основные размеры. Посмотрите, какой она длины и ширины. Также вы увидите размеры вертикальных опор. К кровати пристроена прочная лестница, с одной стороны она опирается на большую тумбу. Но чтобы обезопасить ребенка, лучше сделать на этой тумбе перила. Сначала нужно будет собрать левую часть кровати. Этому поможет чертёж. Соедините стойки с поперечными перекладинами при помощи шкантов и столярного клея. Затем закрепите дополнительно конструкцию саморезами.
Теперь соберите правую торцевую часть. Она одновременно будет ограждением.
После этого соберите каркас площадки. Затем зафиксируйте эту часть конструкции возле кровати. Чтобы каркас подиума был надежный, скрепляйте его части при помощи металлических уголков.
Теперь нужно набить на этот подиум доски. Их крепят при помощи саморезов, можно сначала дополнительно проклеить столярным клеем.
Пришла пора сделать ступеньки кровать. Отпилите концы досок под углом 45 градусов. Наверху это будет с одной стороны, а внизу с двух. Схема сборки кровати даёт размеры, которые будут необходимы на этом этапе. Прикрепите на каждую доску бруски под нужным углом. Чтобы выполнить эту часть работы правильно, лучше сразу поставить данные опоры под нужным наклоном. После того, как вы зафиксируете здесь рейки, можно прикрепить ступени.
Чтобы сделать двухъярусную кровать дальше, нужно будет прикрепить лестницу к подиуму. Это конструкция должна быть надежной. Поэтому перед тем, как отдать данное изделие ребёнку, лучше испытать его предварительно самим. Если всё устраивает, тогда покрасьте кровать. Затем, используя лак на водной основе, покройте тремя слоями этого состава.
А если нужно сделать обычную двухъярусную кровать, тогда обратите внимание на следующую схему. Здесь показано, из каких основных элементов состоит это изделие
Если вы хотите понаблюдать за тем, как сделать двухъярусную кровать, чтобы еще лучше понять этот процесс, тогда посмотрите видеоинструкцию. Такая кроватка будет с рабочей зоной. Герой этого сюжета так бодро работает, что вам наверняка захочется повторить его бытовой подвиг.
Тогда порадуйте детей ещё больше. Предлагаем сделать кровать в виде домика, посмотрите, как можно смастерить такую.
Финальный сюжет рассказывает о том, как сделать кровать-машинку. Сын наверняка обрадуется такому предмету мебели.
Изготовление элементов
Очередность изготовления элементов для будущего ложа включает в себя раскрой материалов, их шлифовку, сверление отверстий для вкручивания саморезов под углом и скрепление элементов мебели при помощи столярного клея и саморезов.
Каркас
Для изготовления каркаса обрезаются две доски размерами 2,5×20×205 см и две доски размерами 2.5×20×148,5 см. Как самому сделать каркас:
- Раскроенные доски обрезают по отметке необходимой длины электролобзиком;
- При помощи шлифмашинки или рубанка древесина шлифуется;
- Все четыре доски размещаются под углом 90 градусов по отношению друг другу. Проверить угол соединения можно при помощи угольника. Для более надежного скрепления можно использовать металлические уголки под 90 градусов;
- Для крепления саморезами под углом делаем специальные отверстия, а после соединения древесины саморезами места стыков закрепляются столярным клеем.
Угол каждой доски должен быть сточен и закруглен. Это обеспечит не только безопасность в эксплуатации, но и убережет столяра, изготавливающего кровать от ран, царапин, заноз и порезов.
Что собой представляет деталь
Ножки для кровати занимают далеко не последнее место в процессе производства мебели. Они могут изготавливаться на фабриках и заводах, а могут быть самодельными, изготовленными в домашних условиях. Эти элементы выполняют сразу несколько функций:
- Декоративная. Украшенные резьбой изделия помогут создать стильный, неповторимый интерьер в спальне и сделать само ложе более привлекательным.
- Защитная. Предотвращают появление механических повреждений, которые могут появиться при перемещении мебели.
- Надежность. Кровать с ножками отличается хорошей устойчивостью.
- С помощью этих деталей можно изменять высоту кровати.
Примечательно, что от качества этих маленьких изделий зависит качество предмета мебели в целом.
Создание чертежа
Умельцам, решившим сделать двухъярусную кровать своими руками, обязательно нужно начинать работу с построения чертежа на бумаге или компьютере. Схема позволит рассчитать необходимое количество материала, крепежных и дополнительных элементов. Специальных конструкторских навыков для этого не требуется, если учесть ряд важных нюансов.
Дистанция между уровнями должна быть такой, чтобы снизу мог сесть взрослый человек без риска удара головой о верхнюю часть. Между вторым этажом и потолком оставляют достаточно места для того, чтобы ребенку было комфортно во время укладывания и сна. Кроме того, при недостаточном объеме свободного пространства малышу будет затруднительно дышать, поскольку горячий воздух стремится вверх. Особенно это актуально во время отопительного сезона. При создании проекта необходимо учитывать стандартные габариты матрасов.

Как сделать матрас жестче
Сделать матрас жестче — часто это не каприз, а необходимость. От упругости изделия зависит то, насколько удобно будет на нем спать, а значит, здоровье вашей спины и ваше самочувствие в целом.
Ах, знала бы принцесса на горошине, что не выспалась не из-за того, что перин было всего десять, и вовсе не из-за крошечного сюрприза. Просто кровать была слишком мягкой! Во времена принцесс еще верили, что чем мягче кровать, тем она лучше. Но теперь-то мы знаем, что залог здорового позвоночника — сон на жесткой поверхности.
Как ни тестируй выбранную модель перед покупкой, а понять сразу, подходит ли она вам, может, и не выйдет. Достаточно ли жесткий матрас обычно становится ясно через несколько недель эксплуатации. И если “нежность” новой кровати через неделю окажется не очень-то комфортной для позвоночника, менять её как-то не с руки. Тогда и появляется вопрос: как увеличить жесткость матраса?
Кровать из плит МДФ, ЛДСП, ОСБ, ДСП или фанеры
Из плит МДФ или ЛДСП делают бюджетную мебель на фабриках, но если задаться целью, то такую конструкцию можно сделать и самому, что будет намного дешевле, да и ассортимент материала можно расширить. Современный рынок предлагает большой выбор плит и модификаций, которые прекрасно зарекомендовали себя в создании предметов мебели. Единственное, что нельзя делать, так это экономить при выборе толщины материала, ведь конструкция кровати должна выдерживать достаточно большую нагрузку.
Если решитесь на такой эксперимент, то для начала необходимо сделать доскональный чертеж и заранее продумать положение деталей на листе ДСП, ЛДСП, ОСБ или фанеры (мебельного щита) нужного размера. Это поможет избежать ошибок при раскрое и уменьшит отходы материала. В том случае, когда дома нет электролобзика, то материал лучше отдать на распил в специальную мастерскую, которая сможет аккуратно это сделать, а если это будет ДСП, ЛДСП то и обработать специальной кромкой торцы.
Чтобы обеспечить максимальную прочность кровати при создании каркаса и ножек, авторы Novate.Ru советуют использовать натуральное дерево или металлоконструкцию, тогда кровать прослужит долго. Если первые 2 материала не требуют дополнительной отделки, то эксперименты с остальными подразумевают еще и творческую работу, ведь кровать должна быть еще и красивой.
В том случае, если это была толстая фанера, то ее можно вскрыть лаком или покрасить в подходящий цвет. Зачастую мастера обтягивают все детали тканью или кожзамом, иногда делают мягкую каретную стяжку. В таком стиле любят украшать изголовье, когда интерьер спальни оформлен в дворцовом стиле.
Наматрасники
Не следует путать их с топперами. Наматрасник — это специальный защитный чехол от воздействия пыли, влаги, различных загрязнений. За счет небольшой толщины наматрасники не могут сильно изменить жесткость спального места.
Самый дешевый топпер состоит из листа поролона и жаккардового чехла. Такая накладка на кровать вас не спасет. Чистый пенополиуретан, холлофайбер или пена с эффектом памяти используются для смягчения матрасов, что прямо противоположно нашей задаче.
Ортопедически правильные топперы состоят из пенополиуретана с гелевой прослойкой, латекса, кокосовой койры (волокно кокосового ореха) и их комбинаций для достижения необходимого эффекта.
Оптимальным для повышения жесткости матраса будет топпер из кокосовой койры. Они исключительно долговечны, они сохраняют ровную поверхность 15-20 лет, а это дальше дольше срока жизни основного изделия. Койровые модели подходят для людей с любым весом, они одинаково хороши как для младенцев, так и на вес до 150 кг.
Кокосовое волокно полностью вентилируется, не подвержено гниению, не впитывает влагу и запахи. При этом за счет своей упругости и жесткости такие топперы обеспечивают полный ортопедический комфорт.
В чистом виде кокосовая койра со временем превращается в труху и теряет свои ортопедические свойства, поэтому современные матрасы обычно содержат койру с различными добавками, а также технически обработанные волокна. На рынке представлены два вида материалов из кокоса: латексированная койра и прессованная. Прессованная постепенно уходит в прошлое, а вот её более совершенный аналог, койра с латексом, считается оптимальным материалом для повышения жесткости спального места.
Ничего лишнего: простейшие конструкции кроватей, которые можно сделать самому
Получайте на почту один раз в сутки одну самую читаемую статью. Присоединяйтесь к нам в Facebook и ВКонтакте.
Спальня – это, пожалуй, самое желанное место в доме, куда устремляются помыслы и ноги человека после вкусного ужина или плотного обеда на выходных. Но чтобы сон был глубоким и расслабляющим, заранее нужно побеспокоиться об организации места отдыха. Помимо умиротворяющей обстановки, тишины, особого освещения и свежего воздуха должна быть удобной кровать, которая станет залогом крепкого и здорового сна.
Стоит ли говорить, что сон в жизни человека играет очень важную роль и от того как пройдет ночной отдых, зависит работоспособность, настроение и здоровье человека
Конечно же, для организации места сна мелочей не бывает, они-то и создают общую атмосферу, но сегодня мы поговорим о самом важном и крупногабаритном атрибуте любой спальни – кровати
Значение кровати
Не последнее место в этом списке занимает кровать и матрас. Кто спал на раскладушке, тот знает как это неудобно и как тяжело с нее подняться. А ощущения остаются такие, будто сна не было вовсе. Правильно подобранные размеры ложа, мягкость матраса и высота от пола значительно улучшат ваш отдых.

Низкую кровать могут выбрать те, кому нравится спать на полу.

ще одним дизайнерским дополнением может стать балдахин или просто дополнительные опоры под него.
Стандартная высота кровати зависит от общепринятого среднего роста человека. Это значит, что для человека с ростом в 165 см высота кровати с матрасом от пола будет от 50 до 63 см.
Разборный детский вариант
Как собрать детскую двухъярусную кровать? Кровать стандартной конфигурации собрать проще, и инструкция по ее изготовлению указана выше. Но имеется еще разборный вариант. К его преимуществу относится возможность зеркального изменения расположения в комнате. Это значит, что правое или левое расположение ступенек можно менять путем перестановки одной панели.
Кроме того, что это очень удобно, поскольку лестница выполняет также функцию полки для книг, конструкция очень компактна. Дополнительный вес придает добавочную стабильность системе. Еще одним приятным моментом при сборке данного варианта является то, что для этой цели не требуется специальных инструментов. Достаточно будет плоскогубцев для разборки панели.
Как сделать изголовье кровати своими руками?

Полноценная кровать стоит недешево. Даже если выбирать из моделей масс-маркета или популярной ИКЕА — вместе с матрасом меньше 20 тысяч рублей сложно найти подходящую модель. Сэкономьте — например, сделайте часть мебели самостоятельно, а каркас и матрас купите в магазине. Рассказываем, как создать мягкое изголовье для кровати своими руками, а также, что нужно будет для воплощения. И подсказываем классные идеи, как самостоятельно оформить часть мебели бюджетными способами.
Статья понравится тем, кто обустраивает квартиру самостоятельно или живет в съемном жилье — когда хочется добавить уюта, но вкладывать деньги нет возможности или желания. Начнем!
Расчет количества материалов
Ниже будет приведен расчет необходимых материалов для кроватей из дерева своими руками. Можно изготовить эту кровать из массива сосны, поскольку она дешевая. Можно выбрать более дорогие материалы. Расчет необходимого количества древесины приведен ниже в таблице.
| Материал | Количество, шт | Размер, в мм | Назначение |
| Доска | 3 | 50*100*2400 | Опорные балки |
| Доска | 3 | 50*24*2400 | Декоративная отделка |
| Доска | 19 | 25*75*2400 | Изготовление дна из реек |
| Доска | 4 | 200*25*2400 | Изготовление рамы |
| Брус | 1 | 2400*100*100 | Ножки |

Количество материала указано для изготовления кровати с размером матраса 2000 на 1500 мм. Это не односпальная кровать, ложе таких размеров подходит для двоих. Если матрас других размеров, потребуется лишь немного изменить длину досок, но алгоритм изготовления и последовательность действий остается неизменной.
Кроме древесины, также понадобятся:
- Саморезы 30 мм;
- Саморезы 60 мм;
- Саморезы 50 мм;
- Акриловый лак (для декоративной отделки);
- Морилка;
- Шпатлевка по дереву;
- Солярный клей.
Вышеупомянутые деревянные элементы указаны из расчета изготовления мебели без изголовья. Добавив резное изголовье, можно создать кровать под старину своими руками. В таком случае изголовье не будет исполнять роль спинки кровати, а скорее выступит в качестве декоративного элемента.

Как подобрать крепление для матраца
Когда проектное решение по изготовлению кровати не предусматривает бортик, матрац, скорей всего, будет сваливаться с нее в процессе сна. В среднем такое изделие весит около восьмидесяти килограмм, располагается на сильно скользящей поверхности. Это способно стать причиной травмирования и иных печальных последствий. Кроме этого, матрац должен выветриваться и «дышать». А двуспальная кровать, изготовленная своими руками, чаще всего под своей основой не имеет пространства, необходимого для вентилирования.
В таких случаях следует крепить матрац к основанию кровати, но не намертво. Ведь придется менять наматрасники, заменять изделие на более удобное. В таких случаях следует воспользоваться липучкой для одежды. Одной стороной она пришивается к матрацу, другую при помощи степлера фиксируют к кровати. Для улучшения вентиляции следует фрезой насверлить отверстий.
Приятные дополнения и нестандарт
Интересным дополнением может быть регулируемое основание, его можно приподнять в верхней части, чтобы в кровати было удобнее читать.
Вся кровать может убираться в стенной шкаф или подниматься под потолок для экономии места в небольших квартирах, для этого она должна быть обеспечена специальным подъемным механизмом, который существенно увеличивает стоимость.

В качестве дизайнерского решения может быть выбрана не обычная прямоугольная кровать, а круглая, сердцевидная или другой причудливой формы. Покупая такую, помните о сложностях, которые вас ждут: и матрас, и постельное белье придется делать на заказ.

Еще одним дизайнерским дополнением может стать балдахин или просто дополнительные опоры под него. Даже если вы не оформите их тканью, смотреться такая кровать будет оригинально.
Финишная отделка кровати
Чтобы готовая деревянная кровать красиво выглядела и хорошо вписывалась в интерьер, нужно подобрать покрытие такого цвета, который хорошо бы сочетался с имеющейся обстановкой. Тщательно ошкурьте и зачистите каркас, пропитайте его олифой и покройте пентафталевой или масляной краской.
Прежде чем покрывать древесину лаком, поверхности нужно придать требуемый тон при помощи морилки. Она равномерно наносится с помощью кисточки. Подождите, пока материал высохнет, и нанесите лак с помощью поролонового тампона, кисточки или валика. Рекомендуется наносить лак как минимум в 2 слоя. Высохшую поверхность отполируйте фетровым или войлочным спонжиком.
Купите декоративную филенчатую плиту для изножья и изголовья. Резную деревянную плиту желаемого дизайна можно заказать в столярной мастерской. Для украшения боковых горизонтальных досок подойдут готовые резные планки. Такие украшения не создают ощутимой нагрузки и легко прикрепляются с помощью саморезов, маленьких гвоздиков или клея. Когда все будет готово, останется лишь положить матрас, и деревянную кровать можно использовать по назначению. Удачной работы!
Подготовка проекта и чертежа
Выбирая готовое решение или начиная изготовление с нуля, приступают к планированию:
- Продумывают общую концепцию конструкции: на сколько человек кровать будет рассчитана, предусмотрены ли выдвижные ящики или ниши. При выборе размера учитывают параметры комнаты — вокруг мебели должно оставаться достаточное количество свободного пространства.
- Изготавливают предварительный эскиз или рисунок с основными деталями: основанием-коробом и каркасом для матраса.
- Выбирают модель матраса. Только после уточнения размеров приступают к проектированию. В противном случае после изготовления основания кровати можно не найти матраса подходящего размера.
- Составляют подробный чертёж короба-основания, силового каркаса, изголовья и задней спинки с указанием способа крепления деталей между собой.
Подробный чертёж необходим для покупки материалов и крепёжных приспособлений, а также для подготовки недостающего инструмента.
Размеры и параметры
В настоящее время все кровати имеют различия по размерам спальных мест. Соответственно существуют различные варианты по своей длине:
- Двуспальная кровать, размером 1,8 на 2,0 метра. Идеальными размерами для нее будут ламели ширина, которых варьируется от 8,8 до 8,85 сантиметров.
- Односпальная кровать. Ширина составляет около 9 – 9,9 сантиметров (если ламели однорядные), и 5 сантиметров для двухрядных реек.
Если требуется заменить сломанную деталь, то стоит учесть также угол изгиба и перед тем как приобрести деталь стоить измерить и длину, и ширину даже тех составляющих, которые уже установлены.
Латофлексы различны по ширине – 0.4, 0.5, 0.7 и 0.8 сантиметров. Толщина же является постоянной и составляет 8 мм.
Немного о ремонте
Иногда кровать может стать менее устойчивой или начинает раскачиваться. Решить проблему поможет изменение ее высоты. Как удлинить ножку? Первый вариант – используя конструкцию со шпилькой.

Второй – с помощью подручных материалов. Это могут быть подставки из какого-либо материала. Они крепятся к ножкам, придавая кровати нужную высоту. В большинстве случаев используются доски. Однако можно взять эпоксидную смолу или пластик. Их нагревают до размягчения и приклеивают к нижней части ножки. Затем нужно поставить мебель на ровную поверхность, дать подкладкам застыть и удалить излишки.
Вам наверняка будет интересно узнать о том, как связать крючком наволочку на подушку.
Другие варианты
Существуют другие решения, как сделать подвесное ложе. Некоторые можно сделать своими руками, для монтажа других придется пригласить плотника.
Ложе на тросах
Это решение заслуживает внимания, подходит для комнат с соответствующей высотой. Реализовать идею можно самостоятельно. Следует выбрать прочные крюки, правильно их установить в потолке, периодически проверять надежность креплений.


Ложе в потолке
Профессиональные мебельные компании предлагают настоящие чудеса, прячущиеся в потолке в виде шкафов, целых стеновых блоков. Можно создать определенный набор для стиля оформления данной квартиры.
Решение позволит оптически увеличить комнату. Стена у кровати, видимая после ее складывания, должна оформляться светлыми тонами, предпочтительно белым, удачное решение – использовать зеркало. Дополнительный трюк, оптически увеличивающий пространство – одинаковый цвет мебели, стен, полов. Пространство, заполненное монохромным цветом, кажется просторнее.
Шкаф под кроватью
Идея, позволяющая сэкономить пространство – обустроить кровать на невысоком шкафу, полностью используя кубатуру пространства комнаты. Это популярное решение для детских комнат используется и в однокомнатной квартире для взрослых.
Подъемный механизм позволяет открыть целый гардероб, о котором мечтают многие дамы.
Интересные идеи с фото
Заключение
Растущая цена квадратного метра жилья вынуждает собственников заботиться о каждом сантиметре инвестиций. Удобная, просторная кровать – настоящий пожиратель пространства. Как увеличить комнату без потери комфортного сна? Ложе под потолком – решение, позволяющее значительно сэкономить пространство.
Пространство над головам обычно остается неоформленным, неиспользованным. В борьбе за потерянные метры, интересное решение – успешно отправить наверх спальное место. Механизм кровати закрепляется, устанавливается на специальных рельсах. Вечером следует оставить его, утром поднять до высоты, не мешающей свободному движению внизу. Другое удобное решение для комнат с высоким потолком – мезонин-чердак. Существует много вариантов готовых решений от производителей мебели.
Кровать из досок и бруса
Создание кровати из натуральной древесины – достойный вариант, чтобы обзавестись надежной конструкцией, которая будет и прекрасным местом для сна и украшением комнаты. Само собой разумеется, если заказывать подобное изделие в мастерской, то оно влетит в хорошую копеечку, но можно пойти и другим путем – самостоятельно ее сделать.
Благо, в наше время приобрести пиломатериалы не проблема, но нужно помнить, что не все породы деревьев могут иметь достаточный запас прочности для такого творчества. А если мы говорим об экономии, то самым бюджетным и надежным вариантом будет лиственница и сосна.
Стоит заметить, что такая древесина легко обрабатывается и при наличии самого минимума инструментов создать кровать сможет любой дилетант и даже девушка.
https://youtube.com/watch?v=25hcI3AVV7s
СТОЛ НАД КРОВАТЬЮ
Этот стол может изготовить всякий, у кого есть хорошая мастерская и необходимые инструменты. Стол предназначен для самых разных занятий и работ. Его можно оснастить тисками, электрическими розетками, светильником и использовать как верстак.
Для определения размеров деревянных деталей необходимо знать ширину кровати и расстояние от столешницы до пола.
МатериалА. Столешница — фанера 9 мм х 400 мм х длина. В. Задняя планка — мягкая древесина 10 мм х 50 мм х длина. С. Боковые планки — мягкая древесина 10 мм х 50 мм х 390 мм, 2 шт. D. Ножки — мягкая древесина 10 мм х 45 мм х 45 мм х высота, 4 шт. Е. Длинная верхняя перекладина — мягкая древесина 12 мм х 75 мм х длина, 2 шт. F. Короткая верхняя перекладина — мягкая древесина 12 мм х 75 мм х 310 мм, 2 шт. G. Нижняя перекладина — мягкая древесина 12 мм х 75 мм х 31 0 мм, 2 шт.
![]()
Мы не даем здесь никаких рекомендаций по сборке, так как опытный мастер знает, как собрать все детали. Определить размер столешницы, задней планки, ножек и длинных перекладин вы сможете, рассчитав длину столешницы, исходя из ширины кровати, а высоту стола — учитывая положение человека в кровати. Длина столешницы равна ширине кровати + 200 мм, высота стола (до внутренней стороны) — измерению, снятому, когда человек находится в кровати и сидит в рабочем положении.





























